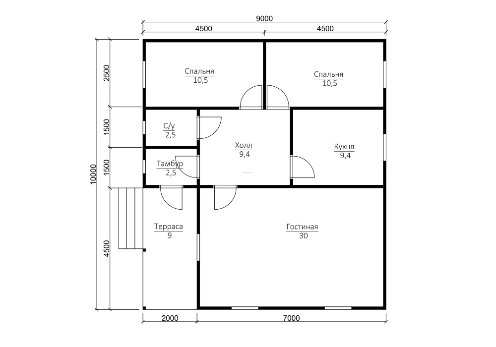
Проект №68 Дом в один этаж 9х10

каркас из строганой доски
Каркасный дом (150 мм) 9х10 Толщина утепления 150 мм 2715400 Заказать
Каркасный дом (200 мм) 9х10 Толщина утепления 200 мм 2945400 Заказать

Доставка включена в стоимость дома!

Пользуйтесь нашим планировщиком для того, чтобы адаптировать под себя уже готовый проект и получить свою личную планировку.

При помощи планировщика вы можете создавать схемы, чертежи, эскизы, планы дома с эркером, мансардой, с требуемым количеством комнат. Вы получите проект с отличной планировкой, 100% отвечающий вашим требованиям.

Вы имеете возможность подобрать тип кровли. Крышу можно сделать четырехскатной, двускатной и вальмовой. Двухскатная крыша считается особенно востребованной в малометражных постройках.

Востребованные размеры на текущий момент: мини - до 50 кв. М (в основном, одноэтажные дома); компактные - от 70 до 100 квадратов (обычно двухэтажные); большие дома - от 150 м2 и больше.

Готовы предложить дуплексы - каркасные дома с двумя входами на несколько семей. Такие дома строятся сразу для двух хозяев и делятся на две половины, для каждой половины с отдельным входом.


Наши работы

Перейти в галерею


Комплектация

Площадь застройки: 90 м2
Длина: 10 м
Ширина: 9 м
Общая площадь: 75 м2
Исполнение Под ключ (с отделкой)
Фундамент Свайно-винтовой или ж/б сваи (рассчитываются отдельно).
Гидроизоляция фундамента Рубероид в два слоя.
Основание (обвязка) Из обрезного бруса 150х150 мм. 150х200 мм. согласно выбранной толщине утепления. Торцевая доска строганая 45х145/45х195+/-5 мм. согласно выбранной толщине утепления. Обработка антисептиком.
Цокольное перекрытие Строганая доска камерной сушки 45х145/45х195+/-5 мм. с шагом 590 мм. Обработка антисептиком.
Пол черновой Обрезная доска камерной сушки 20х100 мм.
Влаго-ветрозащита чернового пола Мембрана Ондутис А100.
Внешние стены Стойки каркаса из строганой доски камерной сушки 45х145/45х195+/-5 мм. с шагом 590 мм. Верхняя двойная и нижняя обвязки из строганой доски камерной сушки 45х145/45х195+/-5 мм. Разгрузочный ригель из строганой доски 45х145+/-5 мм. Укосины из строганой доски 20х95 мм.
Перегородки Стойки каркаса из строганой доски камерной сушки 45х95+/-5 мм. с шагом 590 мм. Верхняя двойная и нижняя обвязки из строганой доски 45х95+/-5 мм. Разгрузочный ригель из строганой доски камерной сушки 45х145+/-5 мм. Укосины из строганой доски камерной сушки 20х95 мм.
Сборка каркаса На гвозди.
Высота от пола до потолка Дом одноэтажный: 2,5 м. Дом с мансардой: 1-ый этаж- 2,5 м.
2-ой этаж (мансарда)- 2,3 м.
Дом в полтора и два этажа:
1-ый этаж 2,5 м.
2-ой этаж 2,4 м. в полутораэтажном доме
2,5 м. в двухэтажном доме.
Внешняя отделка стен Имитация бруса камерной сушки, сорт АВ, толщиной 17 мм. Монтаж через строганый брусок камерной сушки 45х45+/-5 мм. (вентилируемый фасад). Влаго-ветрозащитная мембрана- Ондутис А100.
Внутренняя отделка стен, перегородок Евровагонка камерной сушки, сорт АВ, толщиной 12,5 мм. по строганой рейке 20х40+/-5 мм. либо ГКЛ 12,5 мм.
Отделка потолка Евровагонка камерной сушки, сорт АВ толщиной, 12,5 мм. по строганой рейке 20х40+/-5 мм. либо ГКЛ 12,5 мм.
Пол чистовой Шпунтованная доска камерной сушки толщиной 35-36 мм. сорт АВ. по строганой рейке 20х40+/-5 мм. либо шпунтованная ДСП 16 мм. по разряженной обрешётке из строганой доски камерной сушки 20х95+/-5 мм.
Утепление (пол, потолок) Минеральная вата Knauf 150/200 мм. согласно выбранной толщине утепления.
Утепление стен Плитный утеплитель Rockwool, толщиной 150/200 мм. согласно выбранной толщине утепления.
Звукоизоляция перегородок Плитный утеплитель Rockwool, толщиной 100 мм.
Пароизоляция (стены, перегородки, пол, потолок) Плёнка Ондутис R70. Дополнительная герметизация нахлёстов/примыканий пароизоляционной плёнки клейкой лентой Delta.
Окна Двухкамерные стеклопакеты ПВХ белого цвета, профиль 60 мм. В комплекте: отливы, подоконники, москитные сетки.
Двери Входная- металлическая, утеплённая (Россия). Межкомнатные- филёнчатые.
Наличники на окна и двери Наличник деревянный, строганый, камерной сушки 70-90 мм. с двух сторон.
Лестница (при наличии второго этажа) Деревянная, одно или двухмаршевая. Перила- заводские резные, балясины- заводские точеные, устанавливаются стартовые точёные столбы. Ступени 40х200 мм. Тетива лестницы- 90х140 мм.
Крыша Двускатная, ломаная или вальмовая в соответствии с проектом.
Стропильная система Выполнена из строганой доски камерной сушки 45х145/45х195+/-5 мм. Шаг установки стропил 590 мм.
Обрешётка Выполняется из строганой доски камерной сушки толщиной 20х95+/-5 мм. Шаг крепления обрешетки 350 мм. Контробрешётка выполняется из строганого бруска камерной сушки 45х45+/-5 мм. Крепится по стропилам (вентиляционный зазор).
Подкровельная мембрана Ондутис А100
Кровельное покрытие (на выбор) Металлочерепица 0,45 мм. Цвет на выбор.
Фронтоны (при наличии) Каркас из строганой доски камерной сушки 45х145/45х195+/-5 мм. Обшиваются имитацией бруса камерной сушки, сорт АВ, толщиной 17 мм. Монтаж через строганый брусок камерной сушки 45х45+/-5 мм. (вентилируемый фасад). Влаго-ветрозащитная мембрана- Ондутис А100. Монтаж вентиляционных решёток.
Свесы крыши Ширина 400 мм. Подшиваются вагонкой камерной сушки, сорт АВ.
Терраса/балкон (при наличии) Устанавливаются опорные столбы из строганного бруса камерной сушки 140х140 мм.
Отделка потолка террасы/балкона Евровагонка камерной сушки толщиной 12,5 мм. сорт АВ.
Пол террасы/балкона Шпунтованная доска камерной сушки толщиной 35-36 мм. сорт АВ.
Ограждение террасы/балкона Перила- строганая доска. Балясины- точеные, фигурные. Либо ограждение в скандинавском стиле. Устанавливаются ступени у входа.
Допуск на геометрические параметры Составляет +/- 50 мм по длине с каждой стороны.
Допускается стыковка имитации бруса, вагонки и половой доски По всему периметру стен дома (если ширина и длина дома более 6,0 метров). Вагонки и доски пола в каждой отдельной комнате.
Допуски по имитации бруса, вагонке, доске +/- 5 мм.
В стоимость включена Доставка комплекта материала в радиусе 500 км. от г. Пестова Новгородской области и сборка дома на вашем участке.
Гарантия 5 лет.
Бытовка строительная 2,0х3,0 м. каркасно-щитовая. Стоимость 23000 руб. Остаётся на участке Заказчика.
Туалет 1,0х1,0 м. каркасно-щитовой. Стоимость 12000 руб. Остаётся на участке Заказчика.
Генератор Стоимость аренды на весь срок строительства 15000 руб. ГСМ за счёт Заказчика.

Строительство дома может осуществляться в двух видах: полностью под ключ и под усадку, когда дом отстаивается в течение определенного времени.

Зимой лучше всего строить в морозную погоду, чтобы каркас не промок, в летний сезон - не в дождливую.

Оптимальными для дачи или сада являются дома на винтовых сваях, у нас представлены одноэтажные и полуторатажные варианты домов.

Если вы планируете проживать постоянно, советуем очень теплые и надежные коттеджи и дома на ленточных и плитных фундаментах.

Мы предлагаем 2 размера утепления: 150 мм и 200 мм. Каркасные дома с толщиной стен 150 мм получаются дешевле, но менее энергоэффективными.

Дополнительные услуги


Дом с каркасной структурой , по проекту 68 одноэтажный с утепленной двускатной кровлей, выделяется экологической чистотой, в связи с использованием стружчатых плит, базальтовой и минеральной ваты, что обеспечивает отменную морозостойкость, приятный микроклимат в жилище. Размеры помещения составляют 9х10 м., общая жилплощадь - 75 кв.м.. Наша компания в самые короткие сроки выстроит дом из каркаса по индивидуальному или типовому проекту в Новочеркасске в удобное для вас время года и на любом виде грунта.

Популярные проекты


Дома из бруса более 100 кв.м. Каркасные дома 7х9 Бани из бруса с балконом
хит продаж
Тип:
Общая площадь: 2
3481160
от 3315400
хит продаж
Тип:
Общая площадь: 2
3156920
от 3006600
хит продаж
Тип:
Общая площадь: 2
3104420
от 2956600
Дома из бруса

Заказать или задать вопрос



Заказать или задать вопрос

Заказать звонок