Дома под ключ в Новочеркасске
Отзывы из Яндекс Карт
4.9
94 отзывов
Дополнительные услуги 88%
2 154 оценок
Комплектации 89%
1 535 оценок
Планировки 90%
2 484 оценок
Проекты 93%
2 231 оценок
С
Дарина Суворова23.07.2025 г.
Мы с мужем выбрали компанию «Брус Дома» по рекомендации друзей и ни разу не пожалели, наш каркасный дом получился очень тёплым, тихим и невероятно уютным, а главное, его построили в точно оговоренные сроки без задержек и проволочек.
Отзывы из Google Карт
4.8
57 отзывов
Дополнительные услуги 88%
2 154 оценок
Комплектации 89%
1 535 оценок
Планировки 90%
2 484 оценок
Проекты 93%
2 231 оценок
С
Видана М.15.01.2025 г.
Спасибо за ваш профессионализм и творческий подход! Наш каркасный дом выглядит как иллюстрация из журнала о загородной жизни. Архитектор предложил несколько оригинальных решений, которые сделали планировку не только удобной, но и уникальной. Качество строительства на высоте, и мы уже успели отметить новоселье с друзьями.
Отзывы из 2гис
4.9
39 отзывов
Дополнительные услуги 88%
2 154 оценок
Комплектации 89%
1 535 оценок
Планировки 90%
2 484 оценок
Проекты 93%
2 231 оценок
С
Ефим Руднев28.05.2025 г.
Уже две зимы дом стоит без единой щели или сквозняка — конструкция дала равномерную усадку, все окна и двери открываются без усилий, что свидетельствует о профессиональном монтаже.


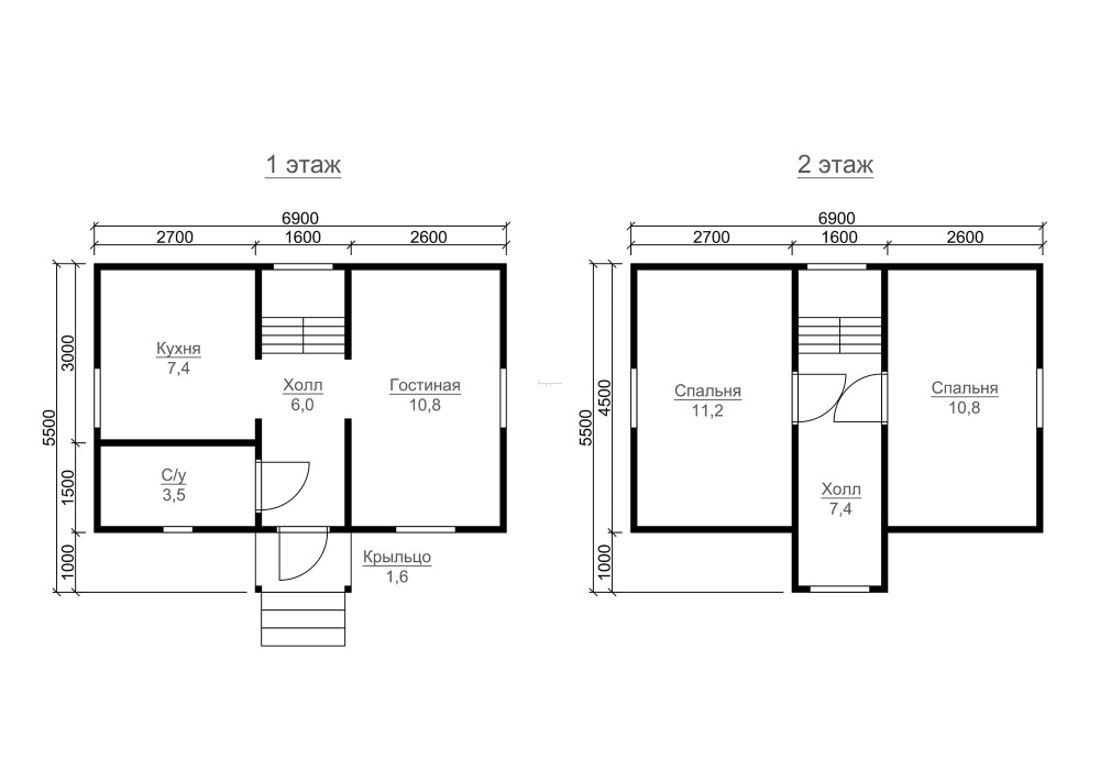
Проект №83 Каркасный дом 4,5х7

каркас из строганой доски
Создайте свой план для этого проекта
и отправьте его нам на расчет в один клик.
Каркасный дом (150 мм) 7х4,5 Толщина утепления 150 мм 2306600 Заказать
Каркасный дом (200 мм) 7х4,5 Толщина утепления 200 мм 2515400 Заказать

Доставка включена в стоимость дома!

Пользуйтесь нашим планировщиком для того, чтобы адаптировать под себя уже готовый проект и получить свою личную планировку.

При помощи планировщика вы можете создавать схемы, чертежи, эскизы, планы дома с эркером, мансардой, с требуемым количеством комнат. Вы получите проект с отличной планировкой, 100% отвечающий вашим требованиям.

Вы имеете возможность подобрать тип кровли. Крышу можно сделать четырехскатной, двускатной и вальмовой. Двухскатная крыша считается особенно востребованной в малометражных постройках.

Востребованные размеры на текущий момент: мини - до 50 кв. М (в основном, одноэтажные дома); компактные - от 70 до 100 квадратов (обычно двухэтажные); большие дома - от 150 м2 и больше.

Готовы предложить дуплексы - каркасные дома с двумя входами на несколько семей. Такие дома строятся сразу для двух хозяев и делятся на две половины, для каждой половины с отдельным входом.


Наши работы

Перейти в галерею


Комплектация

Площадь застройки: 33 м2
Длина: 7 м
Ширина: 4.5 м
Общая площадь: 57 м2
Исполнение Под ключ (с отделкой)
Фундамент Свайно-винтовой или ж/б сваи (рассчитываются отдельно).
Гидроизоляция фундамента Рубероид в два слоя.
Основание (обвязка) Из обрезного бруса 150х150 мм. 150х200 мм. согласно выбранной толщине утепления. Торцевая доска строганая 45х145/45х195+/-5 мм. согласно выбранной толщине утепления. Обработка антисептиком.
Цокольное перекрытие Строганая доска камерной сушки 45х145/45х195+/-5 мм. с шагом 590 мм. Обработка антисептиком.
Пол черновой Обрезная доска камерной сушки 20х100 мм.
Влаго-ветрозащита чернового пола Мембрана Ондутис А100.
Внешние стены Стойки каркаса из строганой доски камерной сушки 45х145/45х195+/-5 мм. с шагом 590 мм. Верхняя двойная и нижняя обвязки из строганой доски камерной сушки 45х145/45х195+/-5 мм. Разгрузочный ригель из строганой доски 45х145+/-5 мм. Укосины из строганой доски 20х95 мм.
Перегородки Стойки каркаса из строганой доски камерной сушки 45х95+/-5 мм. с шагом 590 мм. Верхняя двойная и нижняя обвязки из строганой доски 45х95+/-5 мм. Разгрузочный ригель из строганой доски камерной сушки 45х145+/-5 мм. Укосины из строганой доски камерной сушки 20х95 мм.
Сборка каркаса На гвозди.
Высота от пола до потолка Дом одноэтажный: 2,5 м. Дом с мансардой: 1-ый этаж- 2,5 м.
2-ой этаж (мансарда)- 2,3 м.
Дом в полтора и два этажа:
1-ый этаж 2,5 м.
2-ой этаж 2,4 м. в полутораэтажном доме
2,5 м. в двухэтажном доме.
Внешняя отделка стен Имитация бруса камерной сушки, сорт АВ, толщиной 17 мм. Монтаж через строганый брусок камерной сушки 45х45+/-5 мм. (вентилируемый фасад). Влаго-ветрозащитная мембрана- Ондутис А100.
Внутренняя отделка стен, перегородок Евровагонка камерной сушки, сорт АВ, толщиной 12,5 мм. по строганой рейке 20х40+/-5 мм. либо ГКЛ 12,5 мм.
Отделка потолка Евровагонка камерной сушки, сорт АВ толщиной, 12,5 мм. по строганой рейке 20х40+/-5 мм. либо ГКЛ 12,5 мм.
Пол чистовой Шпунтованная доска камерной сушки толщиной 35-36 мм. сорт АВ. по строганой рейке 20х40+/-5 мм. либо шпунтованная ДСП 16 мм. по разряженной обрешётке из строганой доски камерной сушки 20х95+/-5 мм.
Утепление (пол, потолок) Минеральная вата Knauf 150/200 мм. согласно выбранной толщине утепления.
Утепление стен Плитный утеплитель Rockwool, толщиной 150/200 мм. согласно выбранной толщине утепления.
Звукоизоляция перегородок Плитный утеплитель Rockwool, толщиной 100 мм.
Пароизоляция (стены, перегородки, пол, потолок) Плёнка Ондутис R70. Дополнительная герметизация нахлёстов/примыканий пароизоляционной плёнки клейкой лентой Delta.
Окна Двухкамерные стеклопакеты ПВХ белого цвета, профиль 60 мм. В комплекте: отливы, подоконники, москитные сетки.
Двери Входная- металлическая, утеплённая (Россия). Межкомнатные- филёнчатые.
Наличники на окна и двери Наличник деревянный, строганый, камерной сушки 70-90 мм. с двух сторон.
Лестница (при наличии второго этажа) Деревянная, одно или двухмаршевая. Перила- заводские резные, балясины- заводские точеные, устанавливаются стартовые точёные столбы. Ступени 40х200 мм. Тетива лестницы- 90х140 мм.
Крыша Двускатная, ломаная или вальмовая в соответствии с проектом.
Стропильная система Выполнена из строганой доски камерной сушки 45х145/45х195+/-5 мм. Шаг установки стропил 590 мм.
Обрешётка Выполняется из строганой доски камерной сушки толщиной 20х95+/-5 мм. Шаг крепления обрешетки 350 мм. Контробрешётка выполняется из строганого бруска камерной сушки 45х45+/-5 мм. Крепится по стропилам (вентиляционный зазор).
Подкровельная мембрана Ондутис А100
Кровельное покрытие (на выбор) Металлочерепица 0,45 мм. Цвет на выбор.
Фронтоны (при наличии) Каркас из строганой доски камерной сушки 45х145/45х195+/-5 мм. Обшиваются имитацией бруса камерной сушки, сорт АВ, толщиной 17 мм. Монтаж через строганый брусок камерной сушки 45х45+/-5 мм. (вентилируемый фасад). Влаго-ветрозащитная мембрана- Ондутис А100. Монтаж вентиляционных решёток.
Свесы крыши Ширина 400 мм. Подшиваются вагонкой камерной сушки, сорт АВ.
Терраса/балкон (при наличии) Устанавливаются опорные столбы из строганного бруса камерной сушки 140х140 мм.
Отделка потолка террасы/балкона Евровагонка камерной сушки толщиной 12,5 мм. сорт АВ.
Пол террасы/балкона Шпунтованная доска камерной сушки толщиной 35-36 мм. сорт АВ.
Ограждение террасы/балкона Перила- строганая доска. Балясины- точеные, фигурные. Либо ограждение в скандинавском стиле. Устанавливаются ступени у входа.
Допуск на геометрические параметры Составляет +/- 50 мм по длине с каждой стороны.
Допускается стыковка имитации бруса, вагонки и половой доски По всему периметру стен дома (если ширина и длина дома более 6,0 метров). Вагонки и доски пола в каждой отдельной комнате.
Допуски по имитации бруса, вагонке, доске +/- 5 мм.
В стоимость включена Доставка комплекта материала в радиусе 500 км. от г. Пестова Новгородской области и сборка дома на вашем участке.
Гарантия 5 лет.
Бытовка строительная 2,0х3,0 м. каркасно-щитовая. Стоимость 23000 руб. Остаётся на участке Заказчика.
Туалет 1,0х1,0 м. каркасно-щитовой. Стоимость 12000 руб. Остаётся на участке Заказчика.
Генератор Стоимость аренды на весь срок строительства 15000 руб. ГСМ за счёт Заказчика.

Строительство дома может осуществляться в двух видах: полностью под ключ и под усадку, когда дом отстаивается в течение определенного времени.

Зимой лучше всего строить в морозную погоду, чтобы каркас не промок, в летний сезон - не в дождливую.

Оптимальными для дачи или сада являются дома на винтовых сваях, у нас представлены одноэтажные и полуторатажные варианты домов.

Если вы планируете проживать постоянно, советуем очень теплые и надежные коттеджи и дома на ленточных и плитных фундаментах.

Мы предлагаем 2 размера утепления: 150 мм и 200 мм. Каркасные дома с толщиной стен 150 мм получаются дешевле, но менее энергоэффективными.

Дополнительные услуги


Дом с каркасной структурой , по проекту 83 полутораэтажный с утепленной двускатной кровлей, выделяется экологической чистотой, в связи с использованием стружчатых плит, базальтовой и минеральной ваты, что обеспечивает отменную морозостойкость, приятный микроклимат в жилище. Размеры помещения составляют 7х4,5 м., общая жилплощадь - 57 кв.м.. Наша компания в самые короткие сроки выстроит дом из каркаса по индивидуальному или типовому проекту в Новочеркасске в удобное для вас время года и на любом виде грунта.

Популярные проекты


Каркасные дома 4х5 Бани из бруса с балконом Бани из бруса 12х6
хит продаж
Тип: с балконом, с маленькой террасой
Общая площадь: 2
2547920
от 2426600
хит продаж
Тип: с балконом, с маленькой террасой
Общая площадь: 2
2631920
от 2506600
хит продаж
Тип: с балконом, с большой террасой
Общая площадь: 2
3051920
от 2906600
Дома из бруса

Заказать или задать вопрос



Заказать или задать вопрос

Заказать звонок